O SAEMAS vem por meio deste ofício informar a população sobre os procedimentos necessários para solicitar a ligação de água no imóvel, bem como as orientações sobre instalação e requisitos para a efetivação do serviço.
Documentos Necessários:
Para dar início ao processo de solicitação de ligação de água, o solicitante deve apresentar os seguintes documentos:
CPF e RG (do proprietário).
Alvará de construção ou contrato de compra e venda.
IPTU do ano vigente, com as informações de lote, quadra, quarteirão e código cadastral.
Certidão Negativa de Débito (CND) com o SAEMAS.
Caso o solicitante seja terceiro, é necessário apresentar: Procuração ou autorização do proprietário.
Caso seja locador, é necessário apresentar: Contrato de locação.
Caso o solicitante seja pessoa jurídica, é necessário apresentar:
Contrato social.
Cartão CNPJ.
Providências para Instalação:
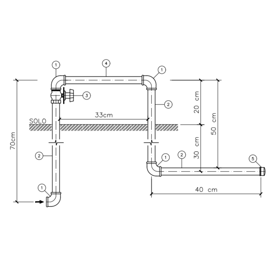
O proprietário ou responsável deverá providenciar a compra e instalação do cavalete na divisa do lote, garantindo que ele esteja posicionado de forma que o hidrômetro, quando instalado, fique voltado para a calçada. Isso facilitará o trabalho do leiturista, que não precisará acessar o interior do imóvel para realizar a leitura do consumo de água.
É imprescindível que o acesso ao cavalete seja livre e desobstruído, garantindo que o SAEMAS possa realizar as leituras, manutenções e demais serviços em qualquer horário.
Passos Após a Instalação do Cavalete:
Após a instalação do cavalete, entre em contato com o telefone 3946-4646 ou informe o número do protocolo gerado através do sistema 1Doc.
Caso a instalação do cavalete apresente irregularidades, o serviço não será concluído até que as correções sejam feitas. A ocorrência será registrada e comunicada ao solicitante por meio do protocolo 1Doc.
Após a regularização da instalação, o solicitante deverá entrar em contato novamente, informando o número do protocolo para a conclusão do serviço.
Informações Importantes:
Não deve ser concretada a base do cavalete, pois ele será vistoriado por um funcionário do SAEMAS durante a visita de instalação.
A instalação predial deve ser realizada com materiais de boa qualidade, evitando desperdícios de água e atendendo às normas técnicas (NBR 9821:1987, NBR 5648:2018 e NBR 5626:2020).
Contamos com a colaboração de todos para garantir a correta execução dos serviços e a eficiência no fornecimento de água.
Exemplo de montagem de cavalete:

